




證書: ISO9001 ISO14001 OHAS18001
材質: S.S304 S.S316L S.S430
交貨期: 7-30天
差異化服務: 小批量訂單及加工,價格公道
煌商佑鋼鐵供應興安裝:不鏽鋼門及中電GLP防火門、HKE港燈不鏽鋼火牛房門、不鏽鋼消防門、熱鍍鋅鋼門、熱鍍鋅鐵門、鋼鐵閘門、BS476-22和EN1634-1、EN 13501-2防火門及不鏽鋼閘門、陽台鐵門、維修通道門、不鏽鋼百葉門、樓宇門、倉庫大門、住宅鋼閘門、不鏽鋼雙掩門、不鏽鋼單掩門、S.S擋水閘門、不鏽鋼消防喉嚨門、樓宇鋼閘、不銹鋼門扇及門樘、配電房門、S.S消防入水制門、中電及港燈牛房門、掣房門、地盤臨時鋼閘、地盤臨時門、熱鍍鋅鐵藝大門、停車場鋼閘、不銹鋼門、不銹鋼閘、不銹鋼扶手、不銹鋼欄河、不銹鋼花園大閘、不銹鋼窗花、不銹鋼趟閘、不銹鋼四趟掩門、不銹鋼搖控電閘、不銹鋼狗籠,、不銹鋼燒烤爐、不銹鋼電錶門、不銹鋼水錶籠、不銹鋼水錶箱、不銹鋼沙井蓋、不銹鋼渠蓋、不銹鋼信箱、不銹鋼告示箱、不銹鋼告示牌 。
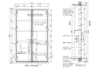
各類形金屬門及不鏽鋼閘門產品展示:
|
|
| 不鏽鋼隧道門 | S.S316L通道門 |
|
|
| 不鏽鋼氣房門(風煤樽房門) | 不鏽鋼通道門(60分鐘防火) |
|
|
| S.S316L百葉門(中電標準) | 不鏽鋼通道門(緊急出口) |
|
|
| 不鏽鋼單掩門(S.S316L) | 不鏽鋼雙掩門(120分鐘防火) |
|
|
| 地鐵站不鏽鋼門 | 走火通道門(地鐵) |
|
|
| 中電CLP火牛房門 | 港燈HKE火牛房門 |
|
|
| 不鏽鋼閘門(花園閘門) | 不鏽鋼藝術閘門 |
|
|
| 不鏽鋼機電房(百葉門) | 不鏽鋼防火門(120分鐘) |
我們的客戶:
我們製作各類形地盤鐵器及鋼鐵結構架及不鏽鋼工程產品廣泛用於本港及海外大型政府工程及私人發展項目,人工島口岸香港、蓮塘口岸、機場訓練中心、德福廣場(港鐵)弘立書院、將軍澳隧道等工程。
煌商佑鋼鐵在過往工程及生產上累積一定經驗、深深明白每個工程項目之建築工期時間對工程進度影響是非常重要、由其是在較短施工期/工程期內完成工程。所以有見及此、我們會為客戶配合提供 " 急件生產 " (事符實際情況而定)、盡量配合客戶之實際工程進度情況作出全面配合生產。
如有加工鐵器及不鏽鋼工程產品、可於香港下單、大陸提貨/送貨服務。
立即獲取免費報價!Get Your Free Quotation Today!
請致電任生:
Phone:+852-65561469
WeChat:+852-65561469
WhatsApp:+852-65561469
E-mail:king@ulsteel.com
hlsteel@aliyun.com